Ref : Log House
| Caractéristiques |
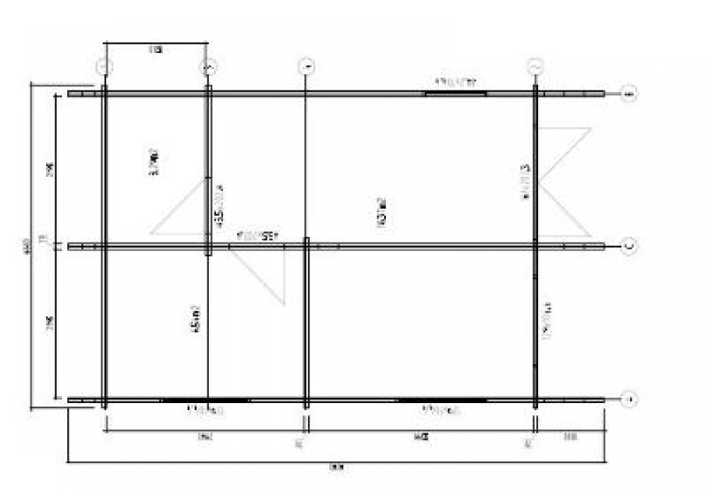
| Taille : 4.80 x 6.80 m 29 m² |
| 4.60 x 6.60 m interieur |
| Epaisseur 70 mm |
| toiture 2 pentes |
| bois massif 70 mm avec plancher bois |
| 1 Doubles portes vitrées |
| double vitrage |
| hauteur paroi 225 cm +- |
| hauteur faîtage 330 cm +- |
| idéal pour faire une petite habitation |
| cloisons salle de bain et chambre inclus |